과테말라 마야 도시서 모자이크 파톨리 게임판 발견
by 샌디 오스터Sandee Oster, Phys.org

라틴 아메리카 고대사Latin American Antiquity 저널에 발표된 연구에서 줄리앙 히케Julien Hiquet 박사와 레미 메뢰즈Rémi Méreuze 박사는 과테말라 고전기Classic Period 도시 나아흐툰Naachtun에서 발견된 독특한 모자이크 양식 파톨리 게임판mosaic-style patolli game board 유물을 분석했다.
이 게임판은 이러한 양식으로 제작한 최초 유물이며, 비교적 연대를 추정할 수 있는 몇 안 되는 유물 중 하나다.
독특한 제작 방식은 이 게임이 어떻게, 그리고 누가 즐겼는지에 대한 새로운 관점을 제시할 수 있다.
이 연구는 프랑스 국립과학연구센터(CNRS), 유럽 외교부 산하 유물위원회(CEMCA)와 공동으로 진행되었다.

나아흐툰Naachtun 유적
나흐툰[외래어 표기법은 이게 맞을 듯]은 과테말라 페텐Petén 주 북부에 위치하며, 한때 고전기 시대 주요 지역 수도였다.
과학자들이 1920년대부터 이 유적 존재를 보고하고 1930년대에 지도를 작성했지만 발굴 작업은 2004년에야 시작되었으며, 2010년부터는 매년 발굴이 진행한다.
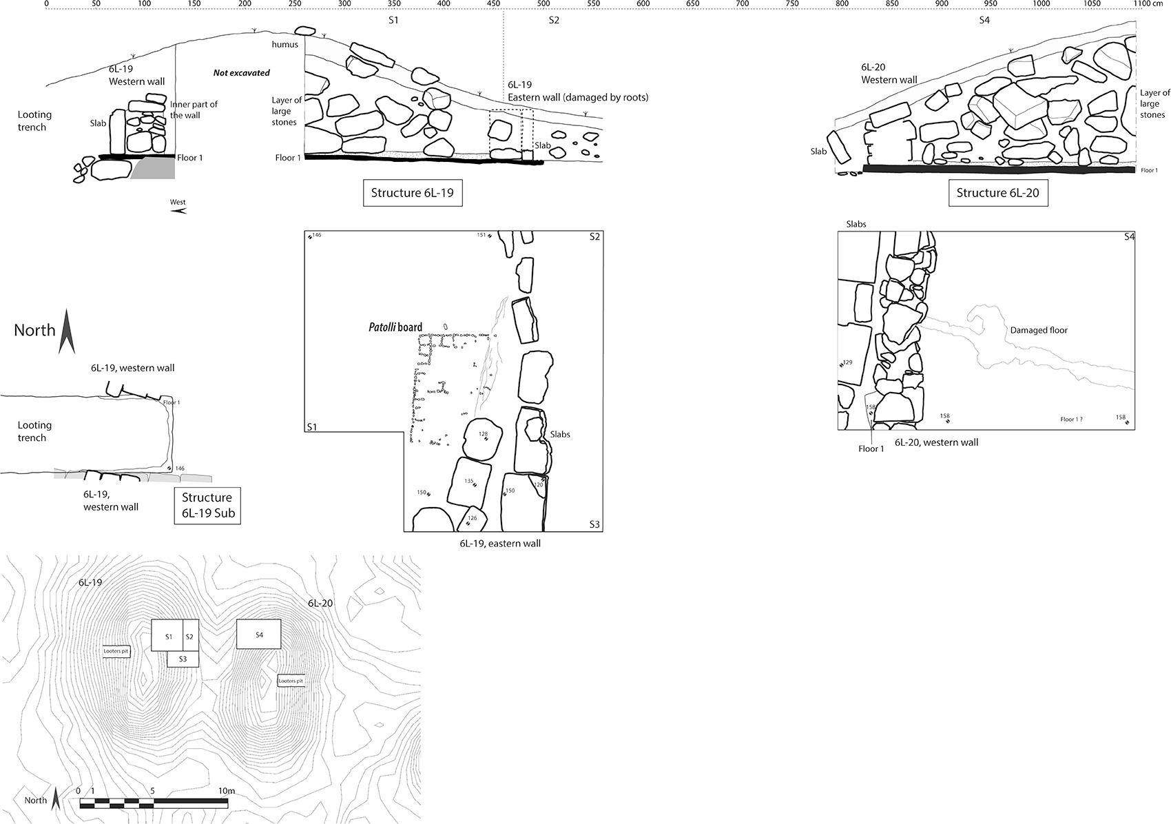
2023년, 6L13군 유적 내 구조물들을 발굴하던 중, 6L-19 구조물 바닥에 모자이크 형태로 박혀 있던 판이 발견되었다.
판 일부는 얇은 벽으로 덮여 있었지만, 분석 결과 파톨리patolli 게임판이었을 가능성이 높은 것으로 밝혀졌다.
파톨리 게임game of patolli
파톨리 게임은 다양한 민족지학적 기록에 묘사되고, 일부 후기 고전기 시대 필사본에 그림으로 나타나며, 때때로 고고학적 유적에서도 발견된다.
이 게임은 십자 모양 판에 놓인 일련의 직사각형들로 구성된다.
히케트 박사에 따르면, "초기 식민지 시대에 스페인 사람들이 쓴 민족사적 연대기에는 멕시코 중부 멕시카족 사이에서 파톨리라는 게임이 파란색과 빨간색 색깔 있는 조약돌pebbles (디에고 두란Diego Durán의 『신과 술의 책Libro de dioses y ritos』[1574~1576]에 따르면 'piedras')을 말로 사용해 진행했다고 기록했다. 주사위는 한쪽 면에 점이 찍힌 콩으로 만들었다.
이 '파톨patol' 콩 때문에 게임 이름이 파톨리로 바뀌었다… 우리 논문에 기술된 게임판의 경우, 말로 볼 만한 유물은 주변에서 발견되지 않았다."

나흐툰 파톨리 게임판
이 판은 깨진 도기에서 수집한 것으로 추정되는 작은 붉은색 테세라tesserae (모자이크 제작에 사용되는 타일)로 구성된다.
판 일부가 파손되어 연구진은 원래 크기를 추정하는 데 그쳤지만, 원래는 가로 약 78cm, 세로 약 110cm 크기였으며, 45개 정사각형으로 이루어졌고 약 478개 테세라로 만들었을 것으로 추정한다.
이 판은 모자이크 기법으로 제작한 유일한 파톨리 판이라는 점에서 특별하다.
히케 박사는 "이 모자이크 판은 매우 이례적이다. 마야 지역 곳곳에서 수십 개 파톨리 판이 발견되었지만, 모두 모자이크 기법이 아닌 긁거나 채색한 것"이라고 설명한다.


이 판의 독특한 제작 방식과 건물 건축 시기를 고려할 때, 연구진은 일반적으로 명문을 새긴 파톨리 판의 경우 제작 시기를 추정하기 어려운 점을 감안하여 대략적인 제작 연대를 추정할 수 있었다.
이 판은 초기 고전 시대에 제작된 것으로 추정되며, 마야 유물 중 가장 오래된 것 중 하나다.
하지만 그토록 공들여 만든 판임에도 건축업자들은 얇은 벽으로 판자 일부를 덮어버렸다.
히케 박사에 따르면, 이러한 결정에 대한 두 가지 가능한 가설이 있다.
첫째, 그 판자는 바닥 공사와 위층 방 공사 사이 공백 기간 동안, 아마도 건설 노동자들이 여가 시간에 사용했을 가능성이 있다. 비슷한 사례가 다른 곳에서도 관찰되었다.

하지만 이 경우에도 의문이 생긴다. 막대기나 돌로 바닥에 판자를 직접 새기는 대신 왜 그렇게 정교한 기술을 사용했을까?
우리 가설은 그 판자가 노동자들을 위해 만들었지만 특정한 사회적 맥락에서 사용되었다는 것이다.
아마도 건물을 의뢰한 부유한 후원자들이 주최한 건설 연회에서 사용되었을 가능성이 있다.
산업화 이전 사회에서는 사설 건설 프로젝트를 위한 노동력 동원이 '축제 동원'이라는 형태로 이루어졌는데, 이때 노동자들은 돈이 아닌 호화로운 식사와 오락으로 보상을 받았다.
두 번째 가설은 6L-19와 6L-20 구조물이 구장ballcourts이었을 가능성을 제시하지만, 아직 이를 뒷받침하는 증거는 발견되지 않았다.

히케 박사는 다음과 같이 설명한다.
"또 다른, 더욱 추측적인 가설은 인근에 평행하게 위치한 두 구조물이 구기장을 모방했을 가능성입니다.
고대 메소아메리카에서는 파톨리 게임과 구장 사이에 상징적인 유사성이 존재했습니다. 코덱스codices에서 파톨리 판과 구기장은 자주 함께 묘사되며, 종종 같은 신의 후원을 받는 것으로 나타납니다. 일부 학자는 파톨리 판 자체를 구기장으로 볼 수도 있다고 주장합니다."
나흐툰 유적에 대한 추가 발굴을 통해 이 판의 원래 용도와 사용 목적이 무엇이었는지 밝혀낼 수 있을 것이다.
More information: Julien Hiquet et al, Dealing with Uniqueness: A Classic Period Maya Mosaic Ceramic Patolli Board from Naachtun, Guatemala, Latin American Antiquity (2025). DOI: 10.1017/laq.2025.10125
© 2025 Science X Network