
어딘가 하면 그 유명한 크노소스 궁전 유적 ruins of the Palace of Knossos 이라
그리스 크레타 섬에 소재하는 미노아문명 최중심이다.
이곳을 소개하는 자료야 넘치지만 항공사진 한 장으로 이리 생생하게 담아 새삼 소개한다.

이 궁전은 미노아 문명 Minoan civilisation 중심지이자 미노아 크레타 섬 Minoan Crete 수도인 헤라클리온Heraklion에서 남쪽으로 5km 떨어진 곳에 위치해 있다.
크노소스는 약 2,000년 동안 번성했다. 이곳에는 큰 궁전 건물, 광범위한 작업장, 암석을 파서 호화롭게 만든 동굴과 톨로스 무덤들tholos tombs이 있었다.
무역과 경제의 주요 중심지였던 크노소스는 지중해 동부 대부분의 도시와 관계를 유지했다.
부의 축적과 도시 생활 방식의 발전은 기원전 2000년경에 시작되어 장엄한 기념비적인 건물과 복잡한 사회 구조로 정점을 찍었다.
미노아 궁전은 신석기시대부터 서기 5년까지 지속적으로 사람이 거주한 고대의 중요한 도시인 크노소스의 주요 관심 장소다.

궁전은 케팔라Kephala 언덕에 지었으며 바다와 크레타 내부에 쉽게 접근할 수 있었다. 전설에 따르면 이곳은 현명한 왕 미노스Minos의 집이었다 한다.
크노소스 궁전은 미로Labyrinth 신화, 미노타우로스Minotaur, 다이달로스Daidalos와 이카로스Ikaros 이야기 등 스릴 넘치는 전설과 연결되어 있다.
유적 첫 번째 발굴은 1878년 헤라클레이온의 미노스 칼로케리노스Minos Kalokerinos of Herakleion에 의해 이루어졌다.
그 후 1900~1913년과 1922~1930년 영국인 아서 에반스 경Sir Arthur Evans이 장기 발굴하여 사실상 궁전 전체를 발굴했다.
궁전 지역 초기 거주 흔적은 신석기 시대(기원전 7000~3000년)로 거슬러 올라간다.
이 유적은 궁전 이전 시대(기원전 3000~1900년)에도 계속 점유되었으며, 그 마지막에는 큰 궁전을 짓기 위해 편평하게 만들었다.


이 첫 번째 궁전은 기원전 1700년경 지진으로 파괴되었다. 두 번째로 더 큰 궁전은 옛 궁전 위에 지어졌다.
이 궁전은 기원전 1450년경에 부분적으로 파괴되었고, 그 후 미케네인들the Mycenaeans이 크노소스에 자리를 잡았다.
궁전은 마침내 기원전 1350년경 큰 폭발로 인해 파괴되었다.
이 궁전이 덮고 있던 유적은 미케네 후기부터 로마시대까지 다시 인간에 점령되었다.
크노소스 궁전의 광범위한 재건은 발굴자 아서 에반스 경이 수행했다.
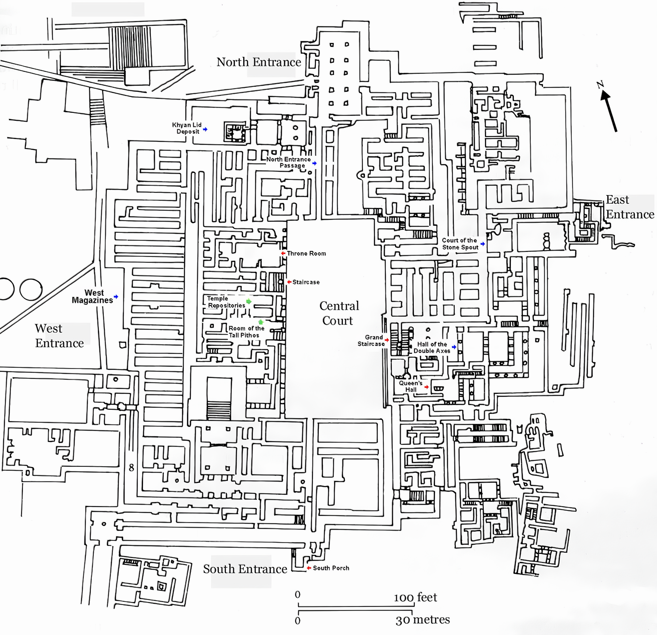
궁전은 면적이 2만㎡에 달하는 다층 건물이었다.
인상적인 특징은 사용된 다양한 건축 자재와 방과 통로를 장식하는 채색 석고, 대리석 호안marble revetment 및 벽 그림이다.
미노아인들이 달성한 첨단 기술 수준은 우물과 폴리티라polythyra, 석조를 보강하기 위한 보 사용, 복잡한 배수 및 상수도 시스템과 같은 몇 가지 독창적인 건축 및 구조적 특징에서도 잘 드러난다.
궁전은 공공 회의에 사용되는 넓은 중앙 궁정 주변을 배경으로 한다.
두 번째 안뜰인 웨스트 코트West Court는 궁전의 공식적인 접근로이자 의식 장소로 사용되었다.

서쪽 건물west wing에는 삼자당 성소Tripartite Shrine, 신성한 저장소Sacred Repositories, 기둥 지하실Pillar Crypts 등 행정 및 종교 활동을 위한 공식 회의실이 입주해 있었다.
왕좌의 방Throne Room은 그중에서도 눈에 띄는 곳으로, 정욕적인 분지lustral basin와 석고 왕좌gypsum throne가 벤치 옆에 있다.
남쪽 날개에서 가장 중요한 지역은 사우스 프로필론South Propylon, 행렬의 회랑Corridor of the Procession, 백합 왕자Prince of the Lilies의 프레스코가 있는 남쪽 입구다.
동쪽 날개에는 주거용 숙소와 대형 접견실이 있었는데, 가장 중요한 것은 이중축의 전당Hall of the Double Axes과 여왕의 전당Queen''s Hall이다.
이 방들은 웅장한 그랜드 계단으로 접근할 수 있다.
북쪽 출입구North Entrance에서 크노소스 항구로 이어지는 도로가 있다. 북쪽 출입구 옆에는 높은 스토아stoas가 있고, 서쪽에는 불 헌트 프레스코Bull Hunt fresco로 장식되어 있다.
작은 궁전과 도시에서 궁전의 북서쪽 모퉁이로 이어지는 거대한 돌로 포장된 행렬인 로열 로드Royal Road는 야외 극장 구역이 있는 곳으로 이어졌다.


궁전 주변에는 언덕에 공동묘지가 있는 미노아 정착촌이 확장되었다.
이 시기 중요한 건물로는 사우스 하우스South House, 챈슬 스크린 하우스House of ther Chancel Screen, 작은 궁전Small Palace, 카라반세라이Caravanserai, 로열 빌라Royal Villa, 템플-툼Temple-Tomb이 있다.
바닥 모자이크가 있는 빌라 디오니소스Villa Dionysos(서기 2년/서기 2년)는 로마 시대 중요한 건물이다.
매우 고품질의 예술품, 도기, 그릇, 피규어, 리니어 B 태블릿Linear B tablets 아카이브, 벽화 원본 등 궁전에서 발견된 수많은 유물은 모두 헤라클레이온 박물관에 소장되어 있다.



Phone: +30 2810 231940
Fax: +30 2810 241515
Email: protocol@kgepka.culture.gr
Webpage: http://odysseus.culture.gr/h/3/eh355.jsp?obj_id=2369
Alternative name ; Cnossus
Location ; Heraklion, Crete, Greece
Region ; North central coast, 5 km (3.1 mi) southeast of Heraklion
Coordinates 35°17′52.66″N 25°9′47.36″E
Type ; Palace complex, administrative center, capital of Crete and regions within its jurisdiction
Length ; North-south length of inhabited area is 5 km (3.1 mi)[1]
Width ; East-west width of inhabited area is 3 km (1.9 mi) max.
Area ; Total inhabited area is 10 km2 (3.9 sq mi). The palace building itself is 14,000 m2 (150,000 sq ft)[2]
Builder ; Unknown
Material ; Ashlar blocks of limestone or gypsum, wood, mud-brick, rubble for fill, plaster
Founded ; The first settlement dates to about 7000 BC. The first palace dates to 1900 BC.
Abandoned ; At some time in Late Minoan IIIC, 1380–1100 BC
Periods ; Neolithic to Late Bronze Age. The first palace was built in the Middle Minoan IA period.
Cultures ; Minoan, Mycenaean
Associated with ; In the Middle Minoan, people of unknown ethnicity termed Minoans; in the Late Minoan, by Mycenaean Greeks
Excavation dates ; 1900–1931, 1957–1960, 1969–1970
Archaeologists ; For the initial teams's work discovering the palace: Arthur Evans; David George Hogarth, Director of the British School of Archaeology at Athens; Duncan Mackenzie, superintendent of excavation; Theodore Fyfe, Architect; Christian Doll, Architect
For the additional work on the Neolithic starting in 1957: John Davies Evans
'문화재현장' 카테고리의 다른 글
| 꼭대기에 나무가 자라는 투스카니 기니기 탑 (4) | 2024.09.24 |
|---|---|
| 강남 봉은사 을축년 대홍수 나청호 칭송비 (4) | 2024.09.23 |
| 미노아 황소는 검정소? 그 강렬한 눈 (3) | 2024.09.22 |
| 한 장으로 종합한 에르콜라노 링 레이디 Ring Lady (2) | 2024.09.14 |
| 그리스 유리 향수병 알라바스트론alabastron (3) | 2024.09.13 |
댓글