
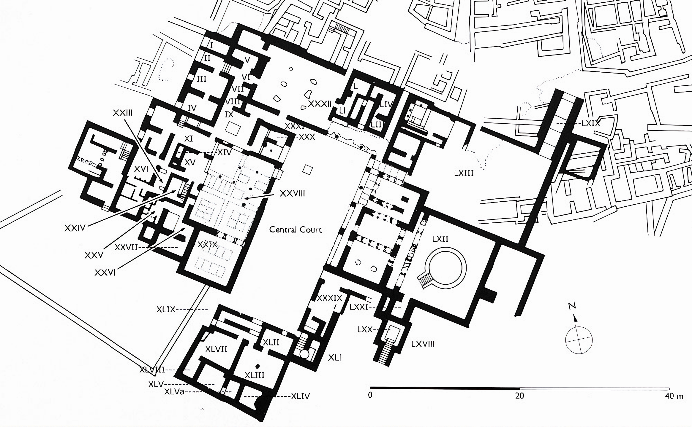
약 3,500년 전, 에게해 크레타 섬 동쪽 끝 항구 어귀에 미노스 상인 공동체가 연회장, 창고, 부엌, 안뜰, 그리고 수영장으로 이루어진 복합 단지를 건설한다.
그네들이 남긴 흔적을 자크로스 궁전 Zakros Palace이라 하지만, 비단 이곳만 아니라 걸핏하면 크레타 섬 일대에 드러나는 미노아 문명 복합단지를 궁전이라 하거니와, 살피면 궁전이라 볼 만한 건덕지는 그 어디에도 없다. 크노소스 궁전? 솔까 어디가 궁전임을 말해주는지 나는 확인하지 못했다.
이 점이 저짝 학계 일부에서도 불만인지 트렌트 대학Trent University 고고학도 D. 매튜 뷰엘 Matthew Buell에 따르면, 미노스 유적 어디에서도 궁전에 어울리는 통치자나 정치인이 거주했다는 증거는 발견되지 않았고 하면서,
이 소위 궁전들은 온갖 종류의 상업, 정치, 종교, 산업, 그리고 사회 활동이 이루어졌을 수 있는 다목적 중심지로 이해하는 편이 좋다고 말하기도 한다.

아무튼 이른바 자크로스 궁전은 약 1에이커(약 4,000㎡) 부지에 중앙 안뜰central court을 중심으로 2층으로 배치된 약 150개 방을 갖춘 곳이다.
1960년대 이래 간헐적인 발굴 과정에서 선형 문자 A[Linear A]로 알려진 문자로 쓰인 13개 석판이 발견되기도 했다. 이 문자는 여전히 해독 불능이라 그럼에도 이런 문서들은 세금이나 공물을 기록한 것이 아닐까 하는 추측도 한다.
하도 발굴을 개판으로, 찔끔찔끔 이놈저놈 손대는 바람에 도대체 뭐가뭔지 모르게 해 놨다. 저 유적 본다고 내가 이라클리오에서 렌터카로 디립다 수백 킬로를 몰아 하루만에 다녀오기도 했으니, 10월인가 11월인가였음에도 더워 뒤지는 줄 알았다.
저 미노아 문명 말이 참 많지만 미노스인들이 어떻게 종교적, 정치적으로 조직되었는지에 대한 증거는 찾을 길이 막막하기만 하다.

다만 저 소위 자크로스 궁전을 포함한 관련 유적 건축물은 몇 가지 단서를 제공한다.
자크로스 궁전 발굴 성과를 보면 내륙 지역에서 올리브유와 기타 농산물을 모아 궁전 안에 보관했다가 의식 때 더 넓은 공동체에 다시 분배하고 바다 건너 무역 상대국으로 배송한 흔적이라 볼 만한 것이 있다.
앞서 인용한 뷰엘은 자크로스의 미노스 선원들이 험난한 해안선을 따라 유일하게 안전한 피난처였던 동쪽 항구를 활용해 근동 및 북아프리카와 특히 강력한 무역 관계를 구축했다고 생각한다.


아닌게 아니라 저 자크로스 궁전 주변 해안은 뭐 같아서 험악하기 짝이 없다. 한데 저 궁전 유적은 개중에서도 쏙 들어간 해수욕장 같은 배후지에 위치한다. 내가 볼 땐 이 동해안 일대에서 거의 유일한 기지촌을 건설할 만한 데가 아닌가 했다.
그런 자크로스도 발굴 성과에 의하면 기원전 1450년 무렵 파괴된 뒤에는 다시는 사용되지 않았다.
이곳에서는 키프로스산 구리 덩이copper ingots, 이집트산 파이앙스faience와 알라바스타alabaster, 시리아산 상아, 그리고 흑요석obsidian과 같은 수입 재료로 만든 여러 종류 리톤rhyton과 같은 사치품목이 발견됐다.
이러한 리톤 중 하나는 녹니석 광물mineral chlorite을 사용하여 황소 머리 모양을 조각했는데, 나무 뿔은 한때 금박으로 감쌌을 가능성이 높다.


자크로스에서 발굴된 유물 대부분은 이라클리오 고고학 박물관에 소장되어 있으며, 미노아 문명에 대한 포괄적인 소개도 이곳에서 제공한다.
'문화재현장' 카테고리의 다른 글
| 성대중이 일본서 구입했다는 일본국 전도 우라까이본 (1) | 2025.04.30 |
|---|---|
| 공중에서 꼬나본 크노소스 궁전, 하지만 코딱지 만하다 (1) | 2025.04.30 |
| 베네치아, 절박이 만든 도시 (1) | 2025.04.26 |
| 과학의 전당은 개뿔, 숨 막혀 죽다 나온 런던 자연사박물관 (0) | 2025.04.25 |
| 월성 신라 개, 사냥개야 똥개야? (0) | 2025.04.25 |
댓글