
구독하는 그룹이 저 사진을 게재하며 이르기를
파포스 모자이크 Pafos (혹은 Paphos) Mosaics 지중해 동부 연안 카토 파포스 고고학공원 Archaeological Park of Kato Pafos에 소재하는 이 지역 가장 정교한 모자이크로 1980년에 유네스코 세계유산에 등재되었다
고 하거니와
덧붙이기를 저 모아이크는 1962년 한 농부가 밭을 갈다 발견했다 한다.
https://whc.unesco.org/en/list/79/
Paphos
Paphos has been inhabited since the Neolithic period. It was a centre of the cult of Aphrodite and of pre-Hellenic fertility deities. Aphrodite's legendary birthplace was on this island, where her temple was erected ...
whc.unesco.org
내친 김에 유네스코를 검색하면, 저를 포함하는 저 일대 유적군群은 아래와 같이 기술하며 저 이름으로 등재됐다 하거니와
Paphos
Paphos has been inhabited since the Neolithic period. It was a centre of the cult of Aphrodite and of pre-Hellenic fertility deities. Aphrodite's legendary birthplace was on this island, where her temple was erected by the Myceneans in the 12th century B.C. The remains of villas, palaces, theatres, fortresses and tombs mean that the site is of exceptional architectural and historic value. The mosaics of Nea Paphos are among the most beautiful in the world.
유네스코 특유한 저 사기성 과장성 농후한 문장들이 이제는 갈수록 경멸스럽다.

암튼 저에 의하면 이곳은 신석기시대에 이래 사람 흔적이 간취되는 곳으로
이곳은 아프로디테와 헬레니즘 이전 다산 신들 숭배의 중심지로 이르기를 이 섬이 아프로디테 탄생지라 한다 하거니와,
그런 까닭인지 기원전 12세기에 이미 미케네 사람들이 이곳에다 그 신전을 세웠다 하며,
이 일대 남은 흔적으로는 빌라와 왕궁 극장 성태, 그리고 무덤이 있거니와 이것들이 익셉셔널한 건축 역사 가치를 지닌다 하는데,
저 빌어먹을 익셉셔널은 언제까지 봐야 하는지 모르겠다.
개중에서도 저 유네스코 문서는 네아 파포스 모자이크 mosaics of Nea Paphos를 특별히 거론하면서 더 익셉셔널하다 대서 특필한다.
더 구체로 보건대 저 모자이크는 파포스 고고학공원 Paphos Archaeological Park (혹은 카토 파포스 고고학공원 Kato Pafos Archaeological Park) 일부라,
그에는 고대 그리스랑 로마 도시 유적을 포함하며 키프로스 Cyprus 남서부 파포스 Paphos 라는 곳, 네아 파포스 Nea Pafos (곧 "신 파포스 New Paphos")에 소재한다 한다.
이 일대에서는 로마시대 모자이크 바닥이 많어 드러났으니, 바닷가 휴양 도시라는 특징에서 말이암았을 것이다.

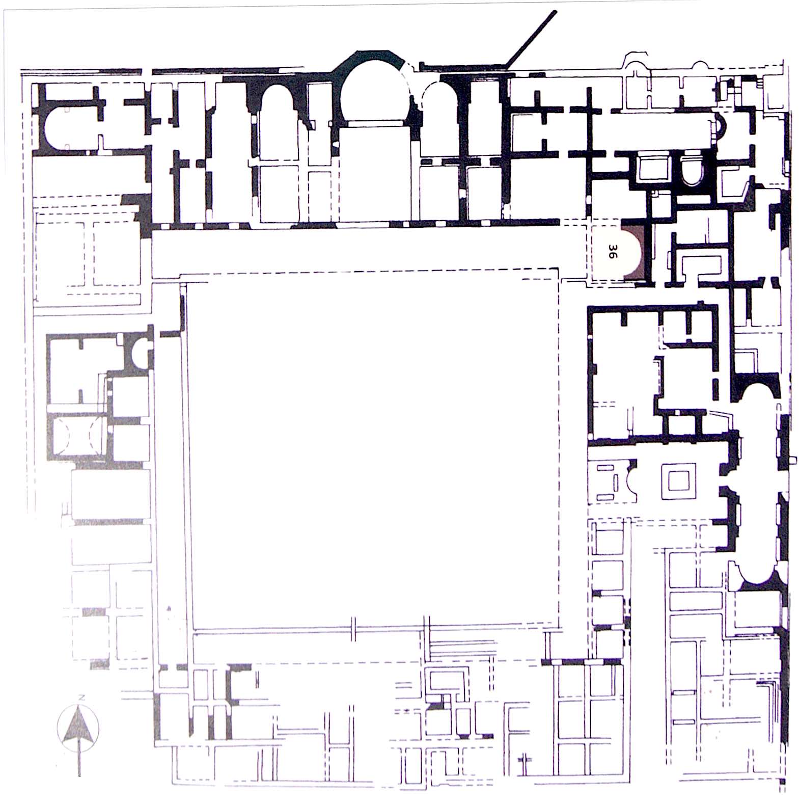
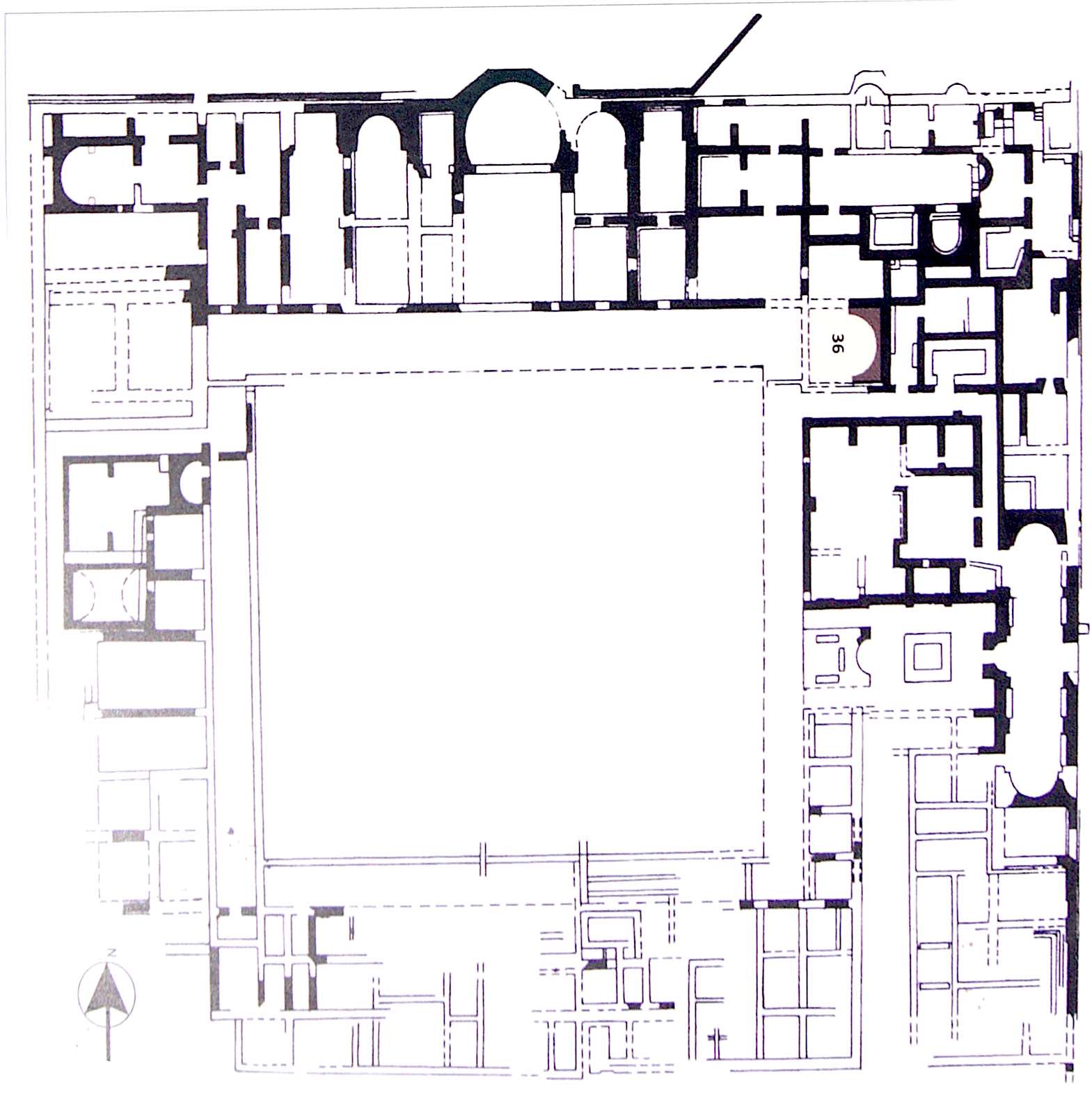
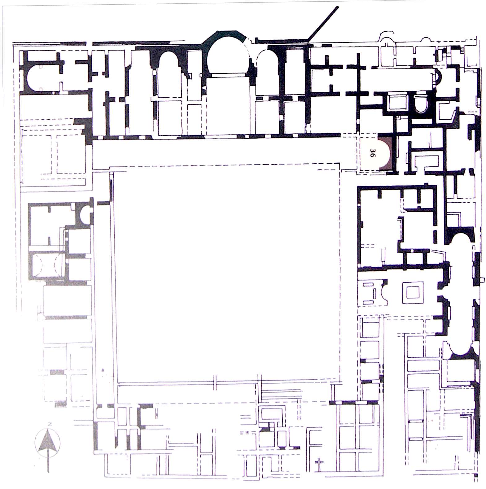
문제의 모자이크 바닥은 아래라
House of Theseus
This exceptionally large villa was the residence of the Roman proconsul or governor, and was divided between rooms for official functions and those for private use. Its name derives from the beautiful mosaic of Theseus and the Minotaur found in the southeast quarter. The villa covered several insulae of the Hellenistic street plan. It was built in the 2nd half of the 2nd c. AD over ruins of earlier houses and was occupied until the 7th c. AD. So far only the southern half of the villa has been fully excavated.

로마시대 이 지역 통치자 빌라였을 것이요 소재 중에 테세우스가 보인다 해서 저리 이름 붙여다 하거니와
서기 2세기 무렵 건물 자체는 지었고 7세기까지 존속했다 하니 저 어간 설치작 아니겠는가 싶다.
'문화재현장' 카테고리의 다른 글
| 고대 그리스 암포라 옹관 (28) | 2024.04.22 |
|---|---|
| 부소산 기구한 정자 사자루泗泚樓 (36) | 2024.04.22 |
| 부여 쌍북리 뒷개유적(안 반장님을 생각하며) (4) | 2024.04.20 |
| 우연이 부른 발견 증후을묘曾侯乙墓, 청동기물 10톤을 쏟아내다 (17) | 2024.04.19 |
| 운주사, 경기 불황으로 부도난 탑 공장 (25) | 2024.04.19 |
댓글