위선 위치와 그 발음을 확인한다.
위치는 아래 지도에서 보듯이 아나톨리아 반도 남중부다.
바다를 접한 데도 아니고, 그렇다고 큰 강도 없어, 작은 강이 흐르는 지점이다.
Bing 지도
여러 위치를 찾고, 환승/도보/운전 방향을 확인하고, 실시간 교통량을 보고, 여행을 계획하고, 위성, 공중 및 거리 이미지를 보세요. Bing 지도를 다양하게 이용하세요.
www.bing.com
아래 구글어스를 돌려서 3D로 보는데 주변으로는 드넓은 평원이고, 유적이 위치한 데는 둔덕에 가깝지만 그렇다고 뭐 특별히 각지다 그런 느낌은 없다.
37°40'00.0"N 32°49'41.0"E
Explore 37°40'00.0"N 32°49'41.0"E in Google Earth.
earth.google.com
따라서 이 유적이 위치하는 데는 아나톨리아 반도 평원지대 둔덕에 위치한다 뭐 이 정도로 각인하면 될 듯하다.
다음으로 Çatalhöyük [Chatalhoyuk] 발음과 표기. tʃɑːtɑːlˈhujʊk/ cha-tal-HOO-yuhk 이런 식으로 표기한다.
이 말은 차탈Çatal과 höyük 합성어라 하는데, 앞 단어가 차탈임은 문제가 없다.

한데 문제는 höyük. 터키 사람 발음을 들어보니 도저히 따라할 수는 없고 회이유크 비슷하게 들린다.
저를 현행 외래어 표기법은 차탈회위크 정도로 표기하는 모양인데, 별 이견 없이 따라주면 될 듯하다.
어차피 100퍼 원음에 가깝게 표기한단 말인가? 한국어 자모가 외국어를 완벽하게 표기해? 어떤 놈이 이딴 헛소리를 해설라무네.
참고로 이웃 문화권 중 중국 쪽을 보니 가태토구加泰土丘라 해서 가태加泰는 차탈을 그대로 소리 옮김하고 회위크는 토구土丘, 곧 흙으로 만든 둔덕이라 해서 뜻 옮김했음을 본다.
höyük는 분퇴墳堆, 고지高地라는 뜻이라고 한다.

일본에서는 チャタル・ヒュユク라 소리옮김하니 차타루 휴유크 라 했음을 본다.
그렇담 저 차탈회위크Çatalhöyük는 어떤 곳이기에 세계고고학사에서 저명한 취급을 받는가?
이곳은 대략 기원전 7,500년 이후 기원전 6,400년까지 존재한 대규모 신석기 및 금석기Chalcolithic 원시 도시 정착지 proto-city settlement 다.
현재까지 확인된 가장 이른 시기 대규모 인류 정착지다.
이에 힘입어 2012년 유네스코 세계유산 목록에 이름을 올렸다.


Çatalhöyük는 현재 터키의 콘야Konya(고대 이코니움Iconium) 도시 남동쪽에 있는 콘야Konya 평야를 내려다보며, 쌍원추형 화산twin-coned volcano인 하산 산Mount Hasan에서 약 140km 떨어져 있다.
동쪽 정착지는 최근 신석기 시대 점령 당시 평원에서 약 20m(66피트) 솟아오른 둔덕을 형성한다.
또한 서쪽에는 작은 정착지 마운드가 있고 동쪽 수백 미터 떨어진 곳에 비잔틴 정착지가 있다.
선사시대 고분 정착지는 청동기 시대 이전에 버려졌다.
한때 두 언덕 사이에 차르샴바 강Çarşamba River 수로가 흐르고 있었고 정착지는 초기 농업에 유리한 충적 점토 위에 세워졌다.


현재 가장 가까운 강은 유프라테스Euphrates다.
이 유적은 1958년 제임스 멜라르트James Mellaart가 처음 발굴했다.
그는 이후 1961년부터 1965년까지 네 번에 걸쳐 추가 발굴 작업을 진행한 팀을 이끌었다.
이 발굴을 통해 아나톨리아 이 지역이 신석기 시대 고도 문화의 중심지였음이 밝혀졌다.
발굴 결과, 정착 시대와 역사 시대의 다양한 단계를 나타내는 18개 연속적인 건물층이 발견되었다.
맨 아래 건물층은 기원전 7,100년으로, 윗층은 기원전 5,600년으로 추정된다.
멜라르트는 이른바 도라크 사건(Dorak affair)에 연루되어 터키에서 추방되었는데, 이 사건에서 그는 중요한 청동기 시대 유물 그림을 출판했지만 나중에 사라졌다.


이 스캔들 이후 유적은 1993년까지 방치되다가 당시 케임브리지 대학교 이언 호더(Ian Hodder) 교수 지휘 아래 조사가 재개되어 2018년 종료한다.
이 스캔들 역시 나중에 한 번 정리해 볼까 한다.
Mellaart 제자이기도 한 Hodder는 당시 논란이 되었던 그의 후과정 고고학 post-processual archaeology이론에 대한 최초의 "현실 세계real world" 시험 장소로 이 유적을 선택했다.
이 유적은 이 프로젝트의 실험적이고 반성적인 방법론적 프레임워크이 주도되는 디지털 방법론과의 연계에 대한 연구에 항상 중점을 두었다.
Mickel에 따르면, Hodder의 Çatalhöyük 연구 프로젝트(ÇRP)는 적응 가능하고 민주화항 기록, 컴퓨터 기술의 통합, 샘플링 전략, 그리고 지역 사회 참여라는 측면에서 진보적인 방법론을 위한 장소로 자리매김했다.
이 방론론은 나중에 따로 정리할 기회가 있을 것이다.

이어 새로운 발굴이 아나돌루 유니버시티 Anadolu University 알리 우무트 튀르칸 Ali Umut Türkcan에 의해 재개된다.
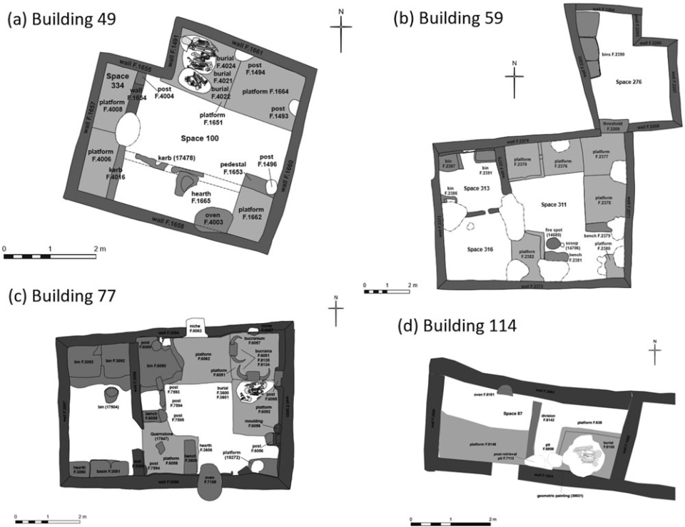
차탈회위크는 눈에 띄는 공공 건물 없이 오로지 주거용 건물로만 이루어져 있다.
일부 큰 방에는 다소 화려한 벽화가 있지만, 다른 방들 용도는 여전히 불분명하다.
초기 추정치는 평균 인구 5,000명에서 7,000명 사이였다.
그러나 주거용 건물 분포에 대한 수정된 정보와 고고학 및 민족지학 자료를 활용한 최근 연구에 따르면 기원전 6,700년에서 6,500년 사이 차탈회위크에는 연평균 600명에서 800명 사이 사람이 살았다고 추정된다.
이 정도라면 도시라 규정할 수는 없다.
이 유적은 여러 채 건물이 밀집한 형태로 조성되었다.

각 가구는 이웃과 도움, 교역, 그리고 자녀 결혼 가능성을 주고 받았다.(뭔 말인지?)
주민들은 진흙 벽돌로 지은 집들이 밀집된 구조로 빽빽하게 모여 살았다.
벌집처럼 얽힌 미로처럼 밀집된 집 사이에는 보도나 도로가 없었다.
이 역시 이를 도시 수준으로 보기에는 어렵게 한다.
대부분은 천장 구멍과 집 옆면 문을 통해 접근했으며, 문은 사다리와 계단으로 닿았다. 지붕은 사실상 거리였다.
천장 개구부는 또한 유일한 환기구 역할을 하여 집의 열린 난로와 오븐에서 나오는 연기가 빠져나갈 수 있었다.
집에는 사각형 목재 사다리나 가파른 계단을 통해 접근할 수 있는 석고 내부plaster interiors가 있었다.
이들은 보통 방 남쪽 벽에 있었고, 조리 난로와 오븐도 마찬가지였다.
주방에는 다양한 가사 활동에 사용되었을 수 있는 높은 플랫폼이 있었다.
일반적인 집에는 요리와 공예와 같은 일상 활동을 위한 두 개 방이 있었다.
모든 내부 벽과 플랫폼은 매끄럽게 마감되도록 석고로 마감했다.

부속실은 창고로 사용되었으며, 주방에서 낮은 개구부를 통해 접근할 수 있었다.
모든 방은 꼼꼼하게 깨끗하게 유지되었다.
고고학자들은 건물에서 쓰레기를 거의 발견하지 못했으며, 유적 바깥에서는 하수와 음식물 쓰레기가 섞인 쓰레기 더미와 나무, 갈대, 동물 배설물이 타면서 나온 상당한 양의 재를 발견했다.
날씨가 좋으면 옥상에서 많은 일상 활동이 이루어졌을 가능성이 있으며, 이는 광장을 형성했을 가능성이 있다.
후대에는 이 옥상에 큰 공동 화덕이 등장한 것으로 보인다.
시간이 지남에 따라 집들은 부분적으로 허물고 잔해 기초 위에 다시 짓는 방식으로 재건되었고, 이를 통해 점차 마운드가 쌓였다.
최대 18개층에서 거주지가 발굴되었다.
차탈회위크 사람들은 의식 일환으로 마을 안에 시신을 매장했다.

유해는 바닥 아래 구덩이, 특히 난로 아래, 주요 방 안 단상, 그리고 침대 아래에서 발견되었다.
시신은 매장 전에 단단히 굽혔으며, 종종 바구니에 담거나 갈대 매트에 감았다.
일부 무덤에서 뼈가 분리된 것은 시신이 뼈를 모아 매장하기 전에 한동안 야외에 노출되었을 가능성을 시사한다.
어떤 경우에는 무덤을 파헤쳐 시신 머리를 유골에서 떼어냈다.
이러한 머리는 의식에 사용되었을 가능성이 있는데, 공동체 다른 지역에서도 일부 머리가 발견되었기 때문이다.
여성 무덤에서는 방추차spinning whorls가, 남성 무덤에서는 돌도끼가 발견되었다.
일부 두개골은 얼굴을 재현하기 위해 석고로 칠하고 황토ochre로 칠했는데, 이는 인근 유적지보다 시리아와 신석기 시대 예리코Jericho[여리고] 신석기 유적지에서 더 특징적인 관습이다.

생생한 벽화와 작은 조각상들이 정착지 내외부 벽면에서 발견된다. 특히 차탈회위크의 앉은 여인을 비롯한 독특한 여성 점토 조각상들이 유적지 상층부에서 발견되었다.
식별 가능한 사원은 발견되지 않았지만 무덤, 벽화, 작은 조각상들은 차탈회위크 주민들이 상징이 풍부한 종교를 지녔음을 시사한다.
이러한 유물이 밀집되어 있는 방들은 사당이나 공공 집회 장소였을 가능성이 있다. 주된 이미지로는 발기한 남근erect phalluses을 한 남성, 사냥 장면, 현재는 멸종된 오록스aurochs (들소wild cattle)와 사슴의 붉은 이미지, 머리 없는 조각상 위로 급강하하는 독수리 등이 있다. 암사자가 서로 마주 보는 모습과 같은 부조상이 벽에 있다.
동물, 특히 소 머리가 벽에 장식되어 있었다. 하산 다그(Hasan Dağ)의 쌍둥이 산봉우리를 배경으로 한 마을 그림은 세계에서 가장 오래된 지도이자 최초의 풍경화로 자주 거론된다. 그러나 일부는 이러한 해석에 의문을 제기한다. 예를 들어 스테파니 미스Stephanie Meece는 이 그림이 화산 그림보다는 표범 가죽을, 지도보다는 장식적인 기하학적 디자인을 묘사한 그림일 가능성이 더 높다고 주장한다.

차탈회위크의 특징 중 하나는 여성 조각상이다. 최초 발굴자인 멜라르트는 대리석, 청갈색 석회암, 편암schist, 방해석calcite, 현무암basalt, 설화석고alabaster, 점토로 조각하고 성형한 이 정교하게 제작된 조각상들이 여성 신을 나타낸다고 주장했다. 남성 신상도 존재했지만, "여성 신상이 남성 신상보다 훨씬 많았으며, 더욱이 6층 이후에는 남성 신상이 전혀 나타나지 않는 것으로 보인다"고 주장했다.
현재까지 18층까지 확인되었습니다. 이 조각상들은 멜라르트가 신사로 여겨지는 지역에서 주로 발견되었다.
두 마리 암사자가 양옆으로 서 있는 왕좌에 앉아 있는 위풍당당한 여신은 곡물 창고에서 발견되었는데, 멜라르트는 이것이 수확을 보장하거나 식량 공급을 보호하는 수단이었을 것이라고 추측한다.
멜라르트가 네 시즌에 걸쳐 거의 200채 건물을 발굴한 반면, 현재 발굴자인 이언 호더는 한 건물만 한 계절 내내 발굴했다. 호더와 그의 팀은 2004년과 2005년에 멜라르트가 제시한 양식이 거짓이라고 믿기 시작했다.
그들은 유사한 조각상을 하나 발견했지만, 대부분은 멜라르트가 제시한 모신Mother Goddess 양식을 모방하지 않았다. 호더는 모신 문화 대신, 이 유적에서 모계 사회나 부계 사회의 흔적이 거의 발견되지 않는다고 지적한다.
손이 얹힌 풍만한 가슴과 중앙 부분 배는 확장되어 있다. 윗부분에는 머리를 위한 구멍이 있는데, 머리는 없다.
이 조각상을 돌리면 팔이 매우 가늘다는 것을 알 수 있고, 조각상 뒷면에는 매우 마르고 쇠약해진 인간의 해골이나 뼈가 묘사되어 있다.
갈비뼈와 척추뼈는 선명하며, 견갑골과 주요 골반뼈도 마찬가지다. 이 조각상은 여러 가지 방식으로 해석될 수 있다.
조상으로 변하는 여성, 죽음과 관련된 여성, 또는 죽음과 삶이 결합된 여성으로 해석될 수 있다. 몸을 둘러싼 선은 갈비뼈가 아닌 감싸는 것을 나타낼 수도 있다.

구체적인 해석이 무엇이든, 이 작품은 차탈회위크 사회와 이미지의 본질에 대한 우리의 관점을 바꾸도록 강요할 수 있는 독특한 작품이다.
아마도 여성 이미지의 중요성은 어머니와 양육자의 역할과 마찬가지로 죽음과 관련된 여성의 특별한 역할과 관련이 있었을 것이다.
터키 데일리 뉴스 Turkish Daily News에 실린 한 기사에서 호더는 차탈회위크가 모계 사회였다는 주장을 부인하며 "그들이 먹고 마시는 것, 그리고 사회적 관습을 살펴보면 남녀의 사회적 지위가 동일했음을 알 수 있다. 권력의 균형이 있었다.
또 다른 예로 두개골이 발견되었다. 차탈회위크에서 사회적 지위가 매우 중요했던 사람들은 사후에 몸과 머리가 분리되었다. 발굴 과정에서 발견된 남녀 두개골 수는 거의 동일하다."
후리옛 일간지Hurriyet Daily News의 다른 기사에서 호더는 "남성과 여성이 동등하게 대우받았다는 것을 알게 되었다."라고 말한 것으로 알려졌다.
2009년 9월 약 2000개 피규어를 발견한 것에 대한 보고서에서 호더는 다음과 같이 말한 것으로 인용된다.
차탈회위크는 1960년대에 체계적인 방식으로 발굴되었지만, 오늘날 우리가 활용할 수 있는 모든 자연과학 기법을 활용하지는 않았다.
1960년대에 이 유적지를 발굴한 제임스 멜라르트 경은 유적지의 구성 방식, 거주 방식 등에 대해 온갖 아이디어를 제시했다. 우리는 1990년대 중반부터 그곳에서 작업을 시작했으며, 유적에 대해 매우 다양한 아이디어를 제시하고 있다.
그 가장 분명한 예 중 하나는 차탈회위크가 아마도 어머니 여신의 개념으로 가장 잘 알려져 있다는 것이다.
하지만 최근 우리의 연구는 사실 어머니 여신의 증거는 거의 없고, 여성 기반의 여성 중심의 가부장제 증거도 거의 없다는 것을 보여주는 경향이 있다.

그것은 현대 과학 연구가 훼손하고 있는 많은 신화 중 하나일 뿐이다.
린 메스켈Lynn Meskell 교수는 원래 발굴에서는 200개 상만 발견됐지만, 이번에 새로 발굴된 상들은 2천 점이며, 이들 대부분은 동물을 묘사한 것이고, 5% 미만은 여성을 묘사했다고 설명했다.
에스토니아 민속학자 우쿠 마싱Uku Masing은 일찍이 1976년에 차탈회위크가 아마도 사냥과 채집 종교였을 것이며 어머니 여신 조각상은 여성 신을 나타내지 않았다고 제안했다.
그는 농업 의례를 위한 상징을 개발하기 위해서는 아마도 더 긴 기간이 필요할 것이라고 암시했다.
그의 이론은 "차탈회위크Catal Hüyük 사람들의 신화에 대한 몇 가지 발언"이라는 논문에서 개진되었다.

차탈회위크는 평등 사회 egalitarian society 였음을 강력하게 보여주는데, 지금까지 왕족이나 종교적 위계와 같은 특징적인 특징을 지닌 가옥이 발견되지 않았기 때문이다.
최근 조사 결과 성별에 따른 사회적 구분은 거의 없었으며, 남녀가 동등한 영양을 섭취하고 사회적 지위가 동등한 것으로 보이는데, 이는 구석기 시대 문화에서 흔히 볼 수 있는 현상이다. 어린이들은 가정 공간도 관찰됐다.
그들은 어른들이 조각상, 구슬, 그리고 다른 물건들을 만드는 것을 보면서 의식을 행하고 집을 짓거나 수리하는 법을 배웠다.
차탈회위크 공간 배치는 사람들 사이에 드러난 가까운 친족 관계 때문일 수 있다. 배치에서 사람들은 "마을 반대편에 살면서 협곡으로 분리된 두 집단으로 나뉘었다"는 것을 알 수 있다.
더 나아가, 결혼 상대를 찾을 수 있는 인근 마을이 발견되지 않았기 때문에 "이 공간적 분리는 두 개 통혼 친족 집단을 나타냈을 것이다."

이는 어떻게 그렇게 일찍 정착지가 그렇게 커질 수 있었는지를 설명하는 데 도움이 될 것이다.
유적 상층부에서는 차탈회위크 주민들이 농업과 가축 사육 기술을 연마하고 있었음이 분명해진다.
밀과 보리 같은 곡물을 저장하는 통 안에서 여성 조각상이 발견되었는데, 이 조각상들은 곡물을 수호하는 신의 모습으로 여겨진다.
완두콩도 재배했고, 주변 언덕 나무에서는 아몬드, 피스타치오, 과일을 수확했다.
양도 가축화했고, 소 가축화 시작을 시사하는 증거도 있다.
그러나 사냥은 여전히 공동체의 주요 식량 공급원이었다.
도기와 흑요석 도구는 주요 산업이었던 것으로 보이며, 흑요석 도구obsidian tools는 아마도 지중해 조개껍데기나 시리아산 플린트와 같은 물품과 교환되거나 사용되었을 것이다.

역사학자이자 반자본주의 작가인 머레이 북친Murray Bookchin은 위계질서와 경제적 불평등의 부재를 지적하며 차탈회위크가 무정부 공산주의 초기 사례라고 주장했다.
반대로 2014년 논문은 차탈회위크의 그림이 더 복잡하며 조리 도구와 일부 석기의 평등주의적 분포가 있었던 것처럼 보이지만 깨지지 않은 모반돌quern-stones과 저장 장치 storage units가 더 고르지 않게 분포되어 있다고 주장한다.
사유재산도 존재했지만 공유 도구도 존재했다.
또한 차탈회위크가 세대간 부의 전달이 더 많아지면서 덜 평등해지고 있다는 제안이 있었다.

2023년에는 코냐 시Konya municipality에서 건설한 최첨단 박물관이 이곳에 새롭게 문을 열었다. 2024년 10월에는 서점과 카페가 추가되었다. 터키어를 사용하지 않는 방문객은 1인당 5유로 입장료를 지불해야 한다. 방문객이 직접 이용할 수 있는 여러 안내 키오스크가 있으며, 그중 일부는 영어와 터키어로 정보를 제공한다.
스모 선수 같은 신석기 대모신大母神
스모 선수 같은 신석기 대모신大母神
언뜻 보면 딱 스모 선수다.유럽이나 중동 쪽 신석기시대 대모신이라 일컫는 존재는 거의 다 저런 펑퍼짐이다.이는 대리석을 조각한 신석기 시대 여성 의인화 조각이라 터키 차탈회위크 유적이
historylibrary.net
8천 년 전 신석기시대를 튀어오른 오동통이 아줌마
https://historylibrary.net/entry/%E3%85%82-2
8천 년 전 신석기시대를 튀어오른 오동통이 아줌마
터키 중부 차탈회위크 Çatalhöyük 신석기 시대 도시 정착촌에서 2016년 수습한 8천 년 전 신석기 시대 풍만한 voluptuous 여성 대리석 조각상. 길이 17cm, 너비 11cm, 무게 1kg이다. 양손으로 축 쳐진 찌찌
historylibrary.net
'문화재현장' 카테고리의 다른 글
| 알프스 아이스맨 외치, 5천 년을 거스른 시간 여행자 (1) | 2025.04.13 |
|---|---|
| 기절초풍할 국박 신석기 생활공간 (1) | 2025.04.12 |
| [국박 선사실] 나를, 우리를 벗어던져야 (0) | 2025.04.10 |
| 반구대 암각화의 시한폭탄 (1) | 2025.04.08 |
| 자칫 하늘로 끌려갈 것만 갔았던 터키 소금호수 (2) | 2025.04.08 |
댓글