by Sandee Oster, Phys.org

(2024년 8월 1일) 프랑스 남부 랑그독Languedoc 지역에서 고고학자들이 안정 동위원소 분석을 통해 중세 시대 식습관에 대한 새로운 통찰을 얻었다.
제인 홀름스트롬Jane Holmstrom 박사를 비롯한 연구진이 고고학인류과학Archaeological and Anthropological Sciences에 발표한 이 연구는 종교, 사회적 지위, 식단의 복잡한 상호작용에 기반한 사회 계층별 식단의 미묘한 차이를 밝혀냈다.
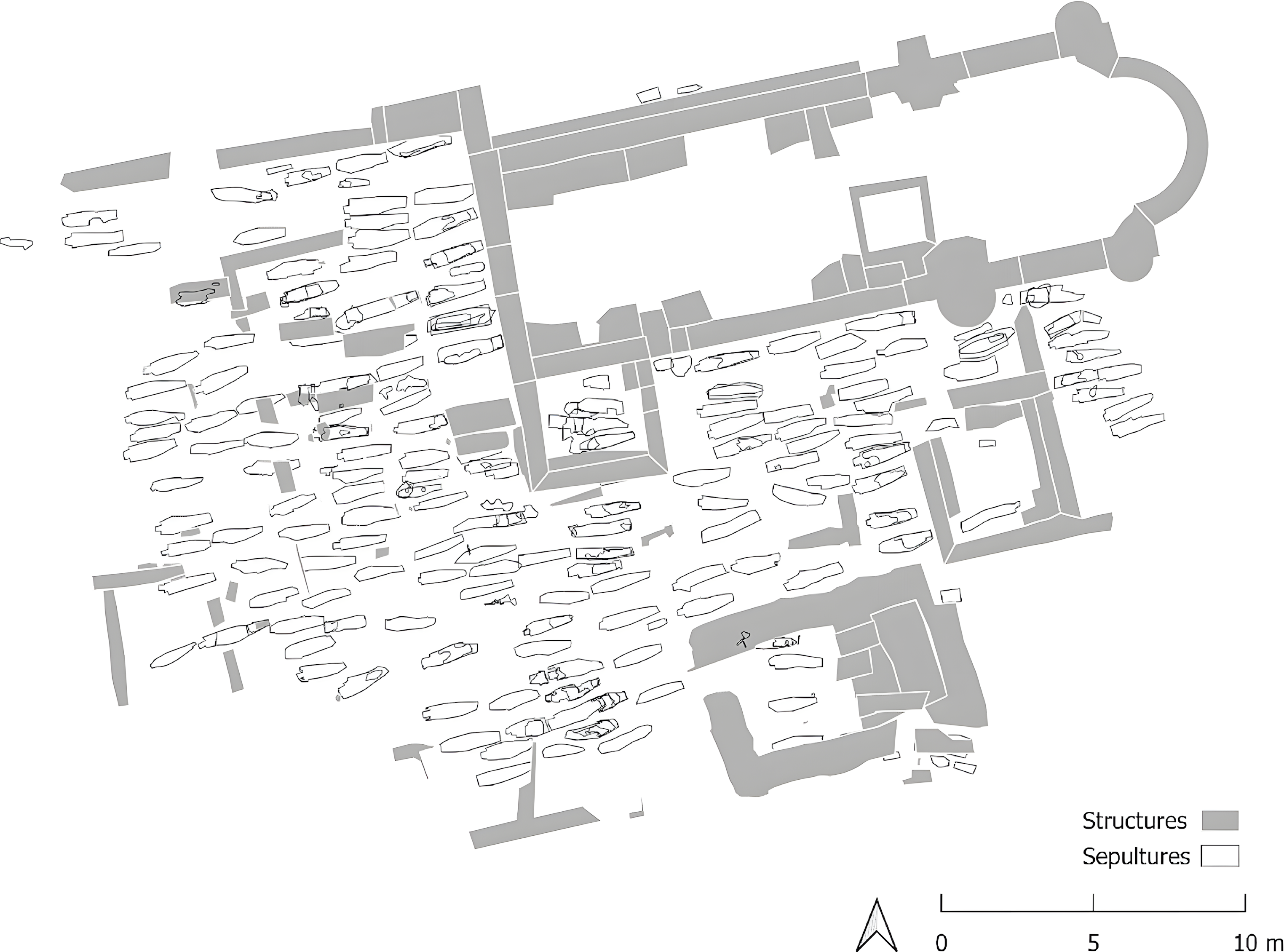
연구 결과는 프랑스 남부의 두 공동묘지에서 발굴된 유골 분석을 바탕으로 한다.
하나는 엘리트 계층인 생장 드 토동Saint-Jean de Todon 고위 성직자들 공동묘지이고, 다른 하나는 하층민 계층인 생빅토르 라 코스트Saint-Victor-la-Coste 공동묘지다.
두 공동묘지 모두 서기 9세기에서 13세기 사이에 조성되었으며 당시 사회경제적, 사회적 구조에 큰 변화가 일어나고 있었던 시기로, 매장된 사람들의 식단에도 영향을 미쳤을 가능성이 있다.
8세기 말, 프랑스를 포함한 유럽 여러 지역은 사회의 문화, 경제, 조직에 영향을 미치는 구조적 변화를 겪었다.
약 200년 후, 클뤼니 수도회 개혁Cluniac reforms은 더 큰 변화를 가져왔다.
이 개혁은 교회와 사제, 수녀, 그리고 신자들이 성 베네딕토St. Benedict가 제시한 길에서 너무 벗어났다고 여겨진 데 따른 것이다.
이를 바로잡기 위해 교회는 구성원 간 더 큰 통일성과 규율을 회복하고자 했다.
이는 다양한 방식으로 이루어졌는데, 그중 하나가 식단 제한의 시행이었다.
이러한 새로운 규정에는 육류 섭취 금지, 교회 지도자들이 섭취할 수 있는 빵, 포도주, 채소의 양 제한 등이 포함되었다.
이러한 규칙은 일반 신도들에게도 적용되었지만, 예외도 있었다.
예를 들어, 일반 신도들은 금식일을 제외하고는 육류를 섭취할 수 있었고, 금식일에는 생선만 허용되었다.
또한, 노인, 어린이, 그리고 병자는 이러한 규칙에서 제외되었다.
연구자들은 역사적 기록에서 얻은 위의 정보를 바탕으로, 엘리트 계층은 다양한 식물성 식품뿐만 아니라 생선과 동물성 식품(육류 및 유제품)이 풍부한 식단을 섭취했을 것이라고 가설을 세웠다.
클뤼니 수도회 성직자들Cluniac monastic individuals은 주로 채식 위주 식단에 생선을 정기적으로 섭취했을 것이며, 일반 계층은 주로 채식 위주 식단에 생선이나 동물성 단백질을 가끔씩 보충했을 것이라고 추측했다.
안정 동위원소 분석을 통해 얻은 데이터는 연구자들이 이러한 가설들을 검증할 수 있는 수단을 제공했다.
연구 결과, 생장 드 토동의 엘리트 공동묘지에서 매장된 사람들은 귀리, 보리, 호밀, 밀을 주재료로 한 식단을 섭취했을 뿐 아니라, 가설대로 동물성 단백질도 정기적으로 섭취한 것으로 나타났다.
흥미롭게도, 연구 결과는 여성들이 남성들보다 동물성 단백질을 적게 섭취하는 경향이 있음을 보여주었다.
이는 성별, 연령, 사회적 지위에 따라 음식 배분을 규정한 베네딕트회 금식 규칙과 일맥상통하다.
이러한 차이는 공동묘지에서 남녀 간에 관찰된 식습관 차이를 부분적으로 설명해 줄 수 있다.
더 나아가, 무덤에 묘비가 있는 반면 없는 경우도 있어 가족 관계나 사회적 지위가 다를 수 있음에도 매장된 사람들의 식단은 유사한 것으로 밝혀졌다.
이는 생전에 사회적 지위가 달랐을지라도, 이들이 생전에는 매우 비슷한 식단을 섭취했을 가능성을 시사한다.
홀름스트롬 박사는 "우리는 묘비가 있는 사람과 없는 사람 사이의 식단 차이가 생각보다 크지 않다는 사실에 놀랐다. 묘비가 있는 사람은 사회적 지위가 높을 것이라고 예상했기 때문"이라고 말했다.
생빅토르라코스트에서는 성별이나 다른 요인에 관계없이 식단이 곡물과 채소 위주로 구성되어 비교적 동질적이었다.
흥미롭게도, 두 공동묘지에서 발굴된 어린이들의 유골은 모유 수유와 이유식에 대한 정보를 제공했다.
더 구체적으로 살펴보면, 생장드통동 공동묘지에서 발굴된 2~3세 또는 4세 어린이들은 여전히 모유 수유를 하고 있거나 이유식을 시작하고 있는 것으로 나타났다.
반면, 생빅토르라코스트 공동묘지에서 발굴된 1~2세 어린이들은 생장드통동 어린이들보다 거의 두 살이나 어린 나이임에도 이미 이유식을 시작하고 있었다.
이러한 자료는 엘리트 계층의 자녀들이 하층 계급 자녀들보다 평균적으로 더 오랫동안 모유 수유를 받았음을 시사한다.
이 연구 결과는 중세 남프랑스의 식습관에 대한 흥미로운 새로운 통찰을 제공하며, 이러한 식습관은 사회경제적 변화뿐만 아니라 종교, 연령, 성별에도 영향을 받았음을 보여준다.
"이러한 공동묘지 유적에서 얻은 자료는 역사 기록과 비교하여 교회의 규칙 준수가 지역별로 차이가 있었거나 각 교구에서 엄격하게 시행되지 않았을 가능성을 보여주는 새로운 정보를 제공할 수 있으며, 이는 기록된 문서와는 다른 관점을 제시한다"고 홀름스트롬 박사는 말했다.
향후 연구 방향에 대해 홀름스트롬 박사는 "사회적 지위와 종교의 관계를 더 잘 이해하기 위해 인근 다른 공동묘지 유적들을 비교 대상으로 삼아 연구를 확장하고 있다. 또한 생장드토동과 생빅토르라코스트 공동묘지 유적에서 발굴된 유골들을 대상으로 방사성 탄소 연대 측정법을 추가로 실시하여 시대의 식습관 변화를 살펴볼 계획"이라고 말했다.
More information
Jane Holmstrom et al, Saint-Jean de Todon and Saint-Victor-la-Coste: exploring diet and social status in medieval southern France (C. 9TH – 13TH AD) using stable carbon and nitrogen isotope analyses, Archaeological and Anthropological Sciences (2024). DOI: 10.1007/s12520-024-02035-z
© 2024 Science X Network
'NEWS & THESIS' 카테고리의 다른 글
| [초기인류] 폴란드 마시츠카 동굴서 1만 8천 년 전 명확한 식인 풍습 증거 발견 (0) | 2026.02.24 |
|---|---|
| 중세 영국을 구축한 쌍둥이 벽돌 제조 가마 (0) | 2026.02.23 |
| [중세유럽] 동위원소 분석 결과 중세 영국에선 역시 수도사들이 잘 먹고 잘 살았다! (1) | 2026.02.22 |
| 9,500만년 전 스피노사우루스는 칼날 모양 머리 볏이 있었다 (0) | 2026.02.22 |
| 베트남 호 왕조 왕궁서 금박 입힌 건축 장식물 수십 점 발굴 (0) | 2026.02.22 |
댓글